Save
Ask
Tour
Hide
$1,200,000
53 Days On Site
16 Patterson StreetBoston, MA 02124
For Sale|Land|Active
County:
Suffolk
Due to the health concerns created by Coronavirus we are offering personal 1-1 online video walkthough tours where possible.
Call Now: (978) 927-1959
Is this the listing for you? We can help make it yours.
(978) 927-1959

Save
Ask
Tour
Hide
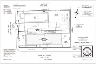
Rarely does a package like this come to market! This offering includes: Single-Family Home – Solid 3-bedroom residence with immediate rental or owner-occupant potential. Seller has ZBA Approvals to build in hand– Two new construction townhouses, each approx. 1,600 sq. ft., designed with 3 bedrooms, 2 baths, and parking.This is an exceptional chance to leverage existing approvals, generate cash flow, and create long-term equity in one of Boston’s fastest-growing neighborhoods.(Whether you’re a developer or an investor seeking a high-upside opportunity, 16 Patterson St. delivers location, scale, and vision.
Save
Ask
Tour
Hide
Listing Snapshot
Price
$1,200,000
Days On Site
53 Days
Bedrooms
N/A
Inside Area (SqFt)
N/A
Total Baths
N/A
Full Baths
N/A
Partial Baths
N/A
Lot Size
0.14 Acres
Year Built
N/A
MLS® Number
73431325
Status
Active
Property Tax
N/A
HOA/Condo/Coop Fees
N/A
Sq Ft Source
N/A
Friends & Family
Recent Activity
| 7 days ago | Listing updated with changes from the MLS® | |
| a week ago | Price changed to $1,200,000 | |
| a week ago | Status changed to Active | |
| 2 months ago | Listing first seen on site |
General Features
Acres
0.14
Sewer
Public Sewer
Utilities
Natural Gas Available
Water Source
Public
Zoning
0
Save
Ask
Tour
Hide
Exterior Features
Lot Features
Other
Listing courtesy of Joseph McEachern of Paramount Properties
The property listing data and information, or the Images, set forth herein were provided to MLS Property Information Network, Inc. from third party sources, including sellers, lessors, landlords, and public records, and were compiled by MLS Property Information Network, Inc. The property listing data and information, and the Images, are for the personal, non-commercial use of consumers having a good faith interest in purchasing, leasing or renting listed properties of the type displayed to them and may not be used for any purpose other than to identify prospective properties which such consumers may have a good faith interest in purchasing, leasing or renting. MLS Property Information Network, Inc. and its subscribers disclaim any and all representations and warranties as to the accuracy of the property listing data and information, or as to the accuracy of any of the Images, set forth herein.
Last checked 2025-11-09 12:38 AM UTC
The property listing data and information, or the Images, set forth herein were provided to MLS Property Information Network, Inc. from third party sources, including sellers, lessors, landlords, and public records, and were compiled by MLS Property Information Network, Inc. The property listing data and information, and the Images, are for the personal, non-commercial use of consumers having a good faith interest in purchasing, leasing or renting listed properties of the type displayed to them and may not be used for any purpose other than to identify prospective properties which such consumers may have a good faith interest in purchasing, leasing or renting. MLS Property Information Network, Inc. and its subscribers disclaim any and all representations and warranties as to the accuracy of the property listing data and information, or as to the accuracy of any of the Images, set forth herein.
Last checked 2025-11-09 12:38 AM UTC
Neighborhood & Commute
Source: Walkscore
Disclosure: Community information and market data powered by Constellation Data Labs. Information is deemed reliable but not guaranteed.
Save
Ask
Tour
Hide
Did you know? You can invite friends and family to your search. They can join your search, rate and discuss listings with you.