Project Description

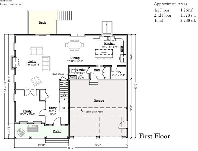
Beautifully crafted 4-bedroom, 2.5-bath new construction, boasting 2,788 sq. ft. of stylish living space. The inviting open layout on the first floor is designed for modern living, featuring stunning hardwood floors that enhance the warm and welcoming atmosphere. The spacious living room is complete with a cozy fireplace, perfect for gatherings and relaxation. Step outside to enjoy a private deck, seamlessly extending your living space for outdoor entertaining. The well-appointed kitchen includes a generous pantry, offering ample storage for all your culinary needs. A delightful dining area completes the space, making it perfect for both casual meals and special occasions. Retreat to the primary suite, where you’ll find a large walk-in closet and an en-suite bathroom designed for comfort and convenience.